Лебедка ЛМ-3.2
Тяговая электрическая лебедка ЛМ-3.2
Монтажная тяговая лебедка серии ЛМ-3,2 имеет крайне обширную сферу применения: она используется в строительной, такелажной и промышленной деятельности. Тяговое усилие агрегата – его основная характеристика – ограничивается 3,2 тоннами.
Стоимость механизма зависит от комплектации. Можно выбрать различные редукторы (двух- или трехступенчатыми), канатоемкость и др. параметры.
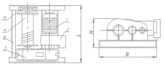
Конструкция механизма – это надежное и лаконичное сочетание электрического привода и исполнительного органа, включающее компоненты, указанные на чертеже.
Конструкция лебедки серии ЛМ-3.2

- электродвигатель
- тормоз
- редуктор
- барабан
- выносная опора
- рама
План расположения фундаментных болтов

Основные технические характеристики
| Тяговое усилие, кгс | 3200 |
| Скорость навивки каната на первом слое, м/с | 0,3 |
| Канатоемкость барабана, м | 250 |
| Мощность электродвигателя,кВт | 11 |
| Диаметр троса, мм | 18 |
| Масса лебедки без каната, кг | 600 |
Лебідка ЛМ-3.2
Нет отзывов об этом товаре.
Нет отзывов о данном товаре, станьте первым, оставьте свой отзыв.
Нет вопросов о данном товаре, станьте первым и задайте свой вопрос.