Лебідка LЕМ-10
Маневрова електрична лебідка LЕМ-10
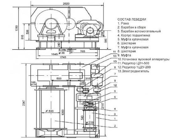
Лебідка маневрова електрична LEM-10 є спеціальним пристроєм, що складається з декількох основних вузлів, до яких належить: електродвигун, редуктор, рама, барабан із тросом. Її призначення це заміна електровозів у переміщенні вагонів, напіввагонів та інших вантажів на розвантажувально-навантажувальних ділянках залізничних колій тільки в одному напрямку.
Маневрова лебідка LЕМ-10 має низку умов для використання:
- наявність неагресивного середовища та помірної запиленості,
- розміщення на горизонтальному майданчику,
- температура довкілля -40...+45 градусів Цельсія,
- робоча напруга 380 В.
Замовити маневрові лебідки LЕМ-10 Ви можете на нашому сайті як у роздріб, так і гуртом. Для цього вам усього лише потрібно залишити заявку на сайті або надіслати її на нашу електронну адресу.
Купуючи цей товар у нас, Ви отримуєте:
- найвища якість, підтверджена відповідними сертифікатами та гарантією,
- ціну від виробника,
- гідний рівень обслуговування,
- мінімальні терміни доставки.
Доставка виробляється будь-яким зі активних перевізників або іншими зручними Вам способами на всій території України.
Технічні характеристики маневрової лебідки LЕМ-10
| Маса вантажу в переміщених вагонах, | 750 |
| Орієнтовна кількість вагонів, шт. | 12 |
| Максимальне тягове зусилля, кгс: - на головному барабані - на допоміжному барабані | 10000 1250 |
| Швидкість каната, середня на першому шарі навивки, м/с: - на головному барабані - на допоміжному барабані | 0,06 0,38 |
| Діаметр каната, мм: - на головному барабані - на допоміжному барабані | 28 11 |
| Діаметр барабана, мм: - головного - допоміжного | - - |
| Канатоємність барабана, м: - на головному барабані - на допоміжному барабані | 250 500 |
| Двигун приводу: - потужність, кВт - частота обертання, об/хв | АІР132M4 11 1450 |
| Редуктор: - передавальне число | Ц2Н-500/1Ц2У-200 31,5/25 |
| Габаритні розміри, мм | 2350x2020x1310 |
| Маса лебідки (без каната), кг, не більш ніж | 3500 |
Схема габаритних розмірів і складових частин лебідки LЕМ-10

Лебедка ЛЭМ-10
Відгуків про цей товар ще не було.
Немає відгуків про цей товар, станьте першим, залиште свій відгук.
Немає питань про даний товар, станьте першим і задайте своє питання.