Лебідка ЛЕМ-15
Електрична лебідка маневрова ЛЕМ-15
Лебідка маневрова ЛЕМ-15 відноситься до категорії електричних і використовується як заміна електровозів для перетягування вагонів, цистерн та інших вантажів на розвантажувально-навантажувальних ділянках залізничного полотна. Вона працює тільки в одному напрямку і не призначена для підйому вантажів.
Лебідка маневрова ЛЕМ-15 має ряд умов щодо застосування:
- різні кліматичні умови,
- наявність неагресивного середовища,
- запиленість, не більше 10 мг/м3,
- температура навколишнього середовища від -40 до+45 градусів Цельсія,
- робоча напруга 380 Ст.
Максимальне число перетягиваемых вагонів, в залежності від їх завантаженості, дорівнює 14.
Замовити маневрові лебідки ЛЕМ-15 Ви можете на нашому сайті, як в роздріб, так і оптом. Для цього вам всього лише потрібно залишити заявку на сайті або надіслати її на нашу електронну адресу.
Купуючи даний товар у нас, Ви отримуєте:
- найвища якість, підтверджене відповідними сертифікатами і гарантією,
- ціну від виробника,
- гідний рівень обслуговування
- мінімальні строки доставки.
Доставка здійснюється будь-яким з діючих перевізників або іншими зручними Вам способами по всій території України.
Технічні характеристики лебідки маневрової ЛЕМ-15
| Маса вантажу в передвигаемых вагонах, т | 900 |
| Орієнтовна кількість вагонів, шт | 14 |
| Максимальне тягове зусилля, кгс: - на головному барабані - на допоміжному барабані | 15000 2100 |
| Швидкість каната, середня на першому шарі навивки, м/с: - на головному барабані - на барабані вспомагательном | 0,06 0,64 |
| Діаметр каната, мм: - на головному барабані - на допоміжному барабані | 32 13 |
| Діаметр барабана, мм: - головного - допоміжного | - - |
| Канатоемкость барабана, м: - на головному барабані - на барабані вспомагательном | 250 500 |
| Двигун приводу: - потужність, кВт - частота обертання, об/хв | АИР160Ѕ4 15 1450 |
| Редуктор: - передаточне число | -/- -/- |
| Габаритні розміри, мм | 2350x2200x1400 |
| Маса лебідки (без каната), кг, не більше | 4900 |
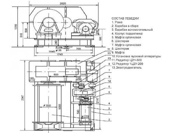
Схема габаритних розмірів і складових частин лебідки ЛЕМ-15

Лебедка ЛЭМ-15
Відгуків про цей товар ще не було.
Немає відгуків про цей товар, станьте першим, залиште свій відгук.
Немає питань про даний товар, станьте першим і задайте своє питання.