Лебідка LЕМ-20
Маневрова електрична лебідка LЕМ-20
Маневрова лебідка LЕМ-20 належить до категорії електричних і застосовується на розвантажувально-навантажувальних ділянках залізничних колій для перетягування вагонів, цистерн та інших подібних вантажів тільки в одному напрямку. Вона здатна перетягувати до 19 вагонів одночасно за завантаженості кожного на 1200 тонн.
Експлуатувати лебідку LЕМ-20 можна в кліматичних умовах У і Т, згідно з ГОСТом 15150 за температури від -40 до +45 градусів Цельсія. Не рекомендується її застосування в агресивному середовищі та середовищі із запиленістю вище 10 мг/м3.
Для роботи лебідки ЛЕМ-20 потрібна напруга 380 В із частотою струму 50 Гц.
Замовити маневрові лебідки LЕМ-20 Ви можете на нашому сайті як у роздріб, так і гуртом. Для цього вам усього лише потрібно залишити заявку на сайті або надіслати її на нашу електронну адресу.
Купуючи цей товар у нас, Ви отримуєте:
- найвища якість, підтверджена відповідними сертифікатами та гарантією,
- ціну від виробника,
- гідний рівень обслуговування,
- мінімальні терміни доставки.
Доставка виробляється будь-яким зі активних перевізників або іншими зручними Вам способами на всій території України.
Технічні характеристики маневрової лебідки LЕМ-20
| Маса вантажу в переміщених вагонах, | 1200 |
| Орієнтовна кількість вагонів, шт. | 19 |
| Максимальне тягове зусилля, кгс: - на головному барабані - на допоміжному барабані | 20000 3200 |
| Швидкість каната, середня на першому шарі навивки, м/с: - на головному барабані - на допоміжному барабані | 0,064 0,54 |
| Діаметр каната, мм: - на головному барабані - на допоміжному барабані | 37 15 |
| Діаметр барабана, мм: - головного - допоміжного | - - |
| Канатоємність барабана, м: - на головному барабані - на допоміжному барабані | 365 380 |
| Двигун приводу: - потужність, кВт - частота обертання, об/хв | АИР180S4 22 1470 |
| Редуктор: - передавальне число | -/- -/- |
| Габаритні розміри, мм | 2690x2355x1680 |
| Маса лебідки (без каната), кг, не більш ніж | 5500 |
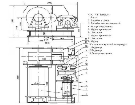
Схема габаритних розмірів і складових частин лебідки LЕМ-20

Лебедка ЛЭМ-20
Відгуків про цей товар ще не було.
Немає відгуків про цей товар, станьте першим, залиште свій відгук.
Немає питань про даний товар, станьте першим і задайте своє питання.