Мотор-редуктор 2МЧ складання 56
Мотор-редуктор черв'ячний одноступінчатий 2МЧ складання 56
Мотор-редуктори 2МЧ відносяться до групи одноступінчастих черв'ячних редукторів, які встановлюють як приводи для обладнання загальномашинного призначення. Призначення даного агрегату полягає у зниженні частоти обертання та збільшенні значення крутного моменту. Редуктори дуже популярні, оскільки показують високий рівень ККД і мають тривалий безперебійний експлуатаційний термін.
Однією з найважливіших характеристик редуктора є варіант складання. Складання 56 відповідно до ГОСТ 20373-94 призначене саме для черв'ячних редукторів. Для нього характерне перпендикулярне розташування осей та наявність симетричних порожнистих тихохідних валів.
Компанія «Промпривод» пропонує придбати редуктори високої якості за вигідними цінами. Для оптових покупців ми надаємо лояльну систему знижок. Зателефонувавши за телефоном, вказаним на сайті, ви отримаєте вичерпну відповідь на будь-яке запитання щодо придбання та особливостей експлуатації будь-якого загальнопромислового або вузькоспеціалізованого редуктора. На всі пристрої поширюється гарантія на 12 місяців. Доставка можлива до будь-якого населеного пункту України.
Умовне позначення варіанта складання 56

Конструкція мотор-редуктора 2МЧ

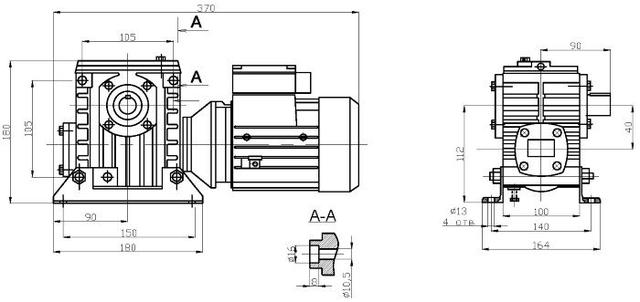
Габаритні та приєднувальні розміри мотор-редуктора 2МЧ
| Типорозмір мотор-редуктора | Lmax | L1 | L2 | L3 | L4 | Bmax | B1 | B2 | Hmax | H1 | H2 | H3 | P | I |
| 2МЧ-40 | 370 | 105 | 180 | 150 | 90 | 164 | 140 | 100 | 180 | 112 | 40 | 105 | 15 | 90 |
| 2МЧ-63 | 470 | 150 | 220 | 180 | 110 | 197 | 165 | 125 | 225 | 145 | 63 | 150 | 20 | 120 |
| 2МЧ-80 | 540 | 180 | 260 | 225 | 130 | 212 | 185 | 140 | 296 | 172 | 80 | 180 | 20 | 145 |
| Типорозмір мотор-редуктора | l1 | l2 | l3 | l4 | d1 | d2 | d3 | t | t1 | c | c1 | D1 | D2 |
| 2МЧ-40 | 28 | 20 | 112 | 28 | 18 | 23 | 25 | 20,5 | 20,8 | 6 | 6 | 16 | 10,5 |
| 2МЧ-63 | 42 | 20 | 108 | 20 | 28 | 33 | 35 | 31 | 29,3 | 8 | 8 | 18 | 12,5 |
| 2МЧ-80 | 58 | 25 | 116 | 24 | 35 | 41 | 44 | 37,5 | 38,3 | 10 | 10 | 18 | 12,5 |
Технічні характеристики мотор-редуктора 2МЧ
| Номінальна частота обертання вихідного валу об/хв | Допустиме радіальне консольне навантаження, прикладене до середини посадкової частини кінця вихідного валу, Н | Номінальний момент, що крутить, на вихідному валу Н х м , при ПВ, % | ККД, % у безперервному режимі з ПВ, 100%, не менше | Типорозмір двигуна серії АІР | Потужність двигуна, | Коригований рівень звукової потужності, дБА, не більше | Маса | ||
| 40 | 100 | ||||||||
| Мотор-редуктор 2МЧ-40 | |||||||||
| 224 | 1500 | 20 | 68 | 63В2 | 0,55 | 80 | 12,4 | ||
| 180 | 24 | 67 | 63В2 | 0,55 | |||||
| 140 | 22 | 58 | 63В4 | 0,37 | |||||
| 112 | 28 | 26 | 57 | 63В4 | 0,37 | ||||
| 90 | 32 | 30 | 55 | 63В4 | 0,37 | ||||
| 71 | 35 | 30 | 52 | 63В4 | 0,37 | ||||
| 56 | 30 | 28 | 50 | 63А4 | 0,25 | ||||
| 45 | 40 | 36 | 48 | 63А4 | 0,25 | ||||
| 35,5 | 36 | 31 | 43 | 63А4 | 0,25 | ||||
| 31 | 41 | 56В4 | 0,18 | 10,5 | |||||
| 28 | 32 | 38 | 56В4 | 0,18 | |||||
| 22,4 | 28 | 26 | 37 | 56А4 | 0,12 | ||||
| Мотор-редуктор 2МЧ-63 | |||||||||
| 180 | 2400 | 100 | 80 | 66 | 80В2 | 2,2 | 83 | 26 | |
| 140 | 100 | 71 | 64 | 80В2 | 2,2 | ||||
| 80 | 62 | 80А2 | 1,5 | 80 | 25 | ||||
| 112 | 100 | 60 | 80В2 | 2,2 | 83 | 26 | |||
| 90 | 59 | 80А2 | 1,5 | 80 | 25 | ||||
| 90 | 125 | 100 | 66 | 80В4 | 1,5 | 26 | |||
| 71 | 125 | 90 | 64 | 80В4 | 1,5 | ||||
| 112 | 62 | 80А4 | 1,1 | 25 | |||||
| 56 | 125 | 59 | 80А4 | 1,1 | |||||
| 100 | 53 | 71В4 | 0,75 | 22 | |||||
| 45 | 125 | 54 | 80А4 | 1,1 | 25 | ||||
| 112 | 49 | 71В4 | 0,75 | 22 | |||||
| 35,5 | 125 | 46 | 71В4 | 0,75 | |||||
| 100 | 44 | 71А4 | 0,55 | 21 | |||||
| 28 | 125 | 43 | 71В4 | 0,75 | 22 | ||||
| 112 | 41 | 71А4 | 0,55 | 21 | |||||
| 22,4 | 125 | 37 | 71А4 | 0,55 | |||||
| 18 | 140 | 100 | 40 | 71В6 | 0,55 | 22 | |||
| 100 | 38 | 71А6 | 0,37 | 21 | |||||
| 14 | 125 | 90 | 36 | 71В6 | 0,55 | 22 | |||
| 100 | 34 | 71А6 | 0,37 | 21 | |||||
| 11,4 | 112 | 80 | 30 | 71А6 | 0,37 | ||||
| Мотор-редуктор 2МЧ-80 | |||||||||
| 224 | 400 | 180 | 125 | 75 | 100L2 | 5,5 | 87 | 49 | |
| 125 | 74 | 100S2 | 4 | 83 | 43 | ||||
| 180 | 180 | 71 | 90L2 | 3 | 38,5 | ||||
| 125 | 69 | ||||||||
| 140 | 180 | 66 | |||||||
| 112 | 180 | 64 | |||||||
| 125 | 63 | 80B2 | 2,2 | 33 | |||||
| 90 | 250 | 180 | 67 | 100S4 | 3 | 43 | |||
| 180 | 66 | 90L4 | 2,2 | 38,5 | |||||
| 71 | 250 | 64 | 100S4 | 3 | 43 | ||||
| 180 | 63 | 90L4 | 2,2 | 38,5 | |||||
| 56 | 250 | 61 | 90L4 | 2,2 | 38,5 | ||||
| 180 | 59 | 80B4 | 1,5 | 80 | 33 | ||||
| 45 | 250 | 200 | 57 | 90L4 | 2,2 | 83 | 38,5 | ||
| 200 | 55 | 80B4 | 1,5 | 80 | 33 | ||||
| 35,5 | 250 | 180 | 50 | 80B4 | 1,5 | 33 | |||
| 180 | 48 | 80A4 | 1,1 | 31,5 | |||||
| 28 | 250 | 48 | 80B4 | 1,5 | 33 | ||||
| 180 | 46 | 80A4 | 1,1 | 31,5 | |||||
| 22,4 | 224 | 160 | 41 | 80A4 | 1,1 | 33 | |||
| 160 | 40 | 71B4 | 0,75 | 28,5 | |||||
| 18 | 224 | 38 | 80A4 | 1,1 | 31,5 | ||||
| 160 | 37 | 71B4 |
| 28,5 | |||||
| 14 | 260 | 180 | 38 | 80A6 | 31,5 | ||||
| 11,4 | 260 | 36 | 80A6 | 31,5 | |||||
| 180 | 35 | 71B6 | 0,55 | 28,5
| |||||
Приклад умовного позначення мотор-редуктора 2МЧ
Мотор-редуктор 2МЧ-40-56-56-1110-У3, 380, ТУ У3.26-00224828-343-98:
40 - відстань між осями, мм;
56 - показники номінальної частоти обертання валу, об/хв;
56 - тип складання (згідно з ГОСТ 20373-80);
1110 - особливості виконання згідно з способом монтажу за ГОСТ 30164-94;
У3 - варіант кліматичного виконання та категорія за положеннями ГОСТ 15150-69;
380 - характеристики напруги мережі, В.
Мотор-редуктор 2МЧ сборки 56
Відгуків про цей товар ще не було.
Немає відгуків про цей товар, станьте першим, залиште свій відгук.
Немає питань про даний товар, станьте першим і задайте своє питання.