Циліндричні редуктори Ц2У складання 35
Редуктори типу Ц2У складання 35
Двоступінчасті промислові редуктори з циліндричним способом зачеплення зубчастих передач серії Ц2У відносяться до універсальних пристроїв механічного перетворення. Вони використовуються в сукупності з електричним двигуном для передачі моменту, що крутить, і швидкості виконавчого пристрою.
При складанні редуктора у варіанті 35 він може бути під'єднаним відразу до двох перетворювачів електричної енергії, що допомагає забезпечити привід достатньою потужністю і безпекою. Також 2 виходи тихохідного валу дозволяють приєднати відразу кілька пристроїв прийому цього руху.
У каталозі промислових перетворювачів та інших агрегатів, які можна знайти на сайті компанії «Промпривод», ви знайдете той механізм, який зможе забезпечити правильність роботи конкретного технологічного процесу. Щоб купити редуктор в Україні, телефонуйте, або пишіть в онлайн-чат нашим компетентним менеджерам, які зможуть проконсультувати вас з будь-якого питання.
Умовне позначення варіанта складання 35

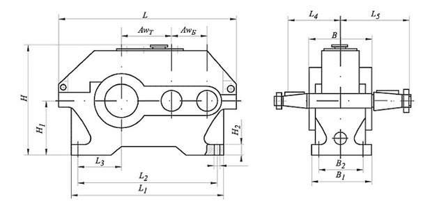
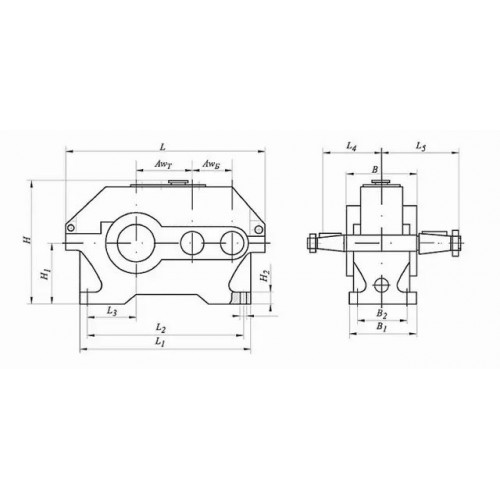
Конструкція редуктора Ц2У

Основні технічні характеристики
| Найменування технічних характеристик | Типорозмір редуктора | |||||
| Ц2У-100 | Ц2У-125 | Ц2У-160 | Ц2У-200 | Ц2У-250 | ||
| Передавальні числа | 8; 10; 12,5; 16; 20; 25; 31,5; 40 | |||||
| Допустиме радіальне консольне | на швидкохідному валу | 500 | 750 | 1000 | 2240 | 3150 |
| на тихохідному валу | 4500 | 6300 | 9000 | 12500 | 18000 | |
| Номінальний момент, що крутить, на тихохідному валу, Н.м. | 315 | 630 | 1250 | 2500 | 5000 | |
| ККД | 0,97 | |||||
| Маса, кг | 20 | 32 | 95 | 170 | 320 | |
Умовне позначення редуктора
Ц2У-250-31,5-35-У3:
Ц2У – тип редуктора;
250 - міжосьова відстань тихохідного ступеня, мм;
31,5 - передавальне число;
35 - схема складання;
У3 - кліматичне виконання та категорія розміщення за ГОСТ 15150-69.
Цилиндрические редукторы Ц2У сборки 35
Відгуків про цей товар ще не було.
Немає відгуків про цей товар, станьте першим, залиште свій відгук.
Немає питань про даний товар, станьте першим і задайте своє питання.