Циліндричні редуктори Ц2У складання 12
Редуктори типу Ц2У складання 12
Вузький двоступінчастий циліндричний перетворювач Ц2У механічних величин, таких як швидкість обертання валу та момент кручення, може мати різноманітні варіанти складання, одним з яких стає складання 12.
Дивлячись на умовне позначення цього виду розміщення валів, можна помітити, що вони розташовуються в горизонтальній площині, можуть бути зібрані у вигляді зубчастої муфти та допускають наявність циліндричного типу передачі.
Редуктор типу Ц2У відноситься до загальнопромислових, може бути встановлений як на виробничому, так і на господарському устаткуванні в горизонтальному положенні стандартних за ГОСТ 15150-69 кліматичних виконаннях.
Підібрати відповідний редуктор допоможуть менеджери компанії «Промпривод». Ми надаємо покупцям прозору інформацію про всі можливості та особливості агрегатів, що купуються, також даємо можливість отримати знижку при оптовому замовленні і отримати сою покупку в будь-якому населеному пункті країни в оптимальні терміни.
Умовне позначення варіанта складання 12

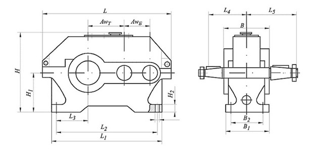
Конструкція редуктора Ц2У

Основні технічні характеристики
| Найменування технічних характеристик | Типорозмір редуктора | |||||
| Ц2У-100 | Ц2У-125 | Ц2У-160 | Ц2У-200 | Ц2У-250 | ||
| Передавальні числа | 8; 10; 12,5; 16; 20; 25; 31,5; 40 | |||||
| Допустиме радіальне консольне | на швидкохідному валу | 500 | 750 | 1000 | 2240 | 3150 |
| на тихохідному валу | 4500 | 6300 | 9000 | 12500 | 18000 | |
| Номінальний момент, що крутить, на тихохідному валу, Н.м. | 315 | 630 | 1250 | 2500 | 5000 | |
| ККД | 0,97 | |||||
| Маса, кг | 20 | 32 | 95 | 170 | 320 | |
Умовне позначення редуктора
Ц2У-250-31,5-12-У3:
Ц2У - тип редуктора;
250 - міжосьова відстань тихохідного ступеня, мм;
31,5 - передавальне число;
12 - схема збирання;
У3 - кліматичне виконання та категорія розміщення за ГОСТ 15150-69.
Цилиндрические редукторы Ц2У сборки 12
Відгуків про цей товар ще не було.
Немає відгуків про цей товар, станьте першим, залиште свій відгук.
Немає питань про даний товар, станьте першим і задайте своє питання.