Циліндричні редуктори Ц2У складання 14
Редуктори типу Ц2У складання 14
Вузькі двоступінчасті перетворювачі загальнопромислового призначення серії Ц2У використовуються як демультиплікатори - агрегати, що зменшують значення величин, що надходять на нього.
Редуктори Ц2У варіанта складання 14 працюють з частотою обертання валів, при впливі на яку збільшується момент кручення, що передається на виконавчий механізм. Особливість даного складання редуктора дозволяє приєднувати не один, а два наступні елементи.
Купуйте якісні перетворювачі різного виконання та варіанта складання 14 у вітчизняного виробника компанії «Промпривод». Ми надаємо гарантію на перетворювачі - 12 місяців, можемо відправити ваше замовлення в будь-який населений пункт країни, а в момент покупки проконсультувати з будь-якого питання. У нас ви зможете купити редуктор за мінімальною вартістю та в повній відповідності до нормативної документації.
Умовне позначення варіанта складання 14

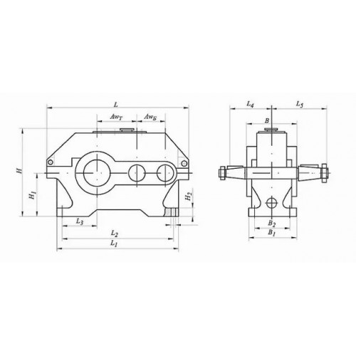
Конструкція редуктора Ц2У

Основні технічні характеристики
| Найменування технічних характеристик | Типорозмір редуктора | |||||
| Ц2У-100 | Ц2У-125 | Ц2У-160 | Ц2У-200 | Ц2У-250 | ||
| Передавальні числа | 8; 10; 12,5; 16; 20; 25; 31,5; 40 | |||||
| Допустиме радіальне консольне | на швидкохідному валу | 500 | 750 | 1000 | 2240 | 3150 |
| на тихохідному валу | 4500 | 6300 | 9000 | 12500 | 18000 | |
| Номінальний момент, що крутить, на тихохідному валу, Н.м. | 315 | 630 | 1250 | 2500 | 5000 | |
| ККД | 0,97 | |||||
| Маса, кг | 20 | 32 | 95 | 170 | 320 | |
Умовне позначення редуктора
Ц2У-250-31,5-14-М-У3:
Ц2У – тип редуктора;
250 - міжосьова відстань тихохідного ступеня, мм;
31,5 – передавальне число;
14 - схема складання;
У3 - кліматичне виконання та категорія розміщення за ГОСТ 15150-69.
Цилиндрические редукторы Ц2У сборки 14
Відгуків про цей товар ще не було.
Немає відгуків про цей товар, станьте першим, залиште свій відгук.
Немає питань про даний товар, станьте першим і задайте своє питання.