Циліндричні редуктори Ц2У складання 22
Редуктори типу Ц2У складання 22
Перетворювачі, що мають дві ступені та зубчасту передачу, використовуються як промисловий редуктор і можуть бути складені в різних варіантах складання, відповідні ГОСТ 20373-94.
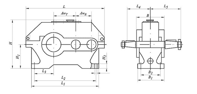
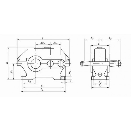
Редуктори типу Ц2У можуть мати два виходи валів – один швидкохідний, один тихохідний, що відповідає складанню 22. Виходи розташовуються на один бік перетворювача. Це дає можливість підключити два механізми: один генеруючий, другий - сприймає і передає обертання.
У каталозі товарів, представленому на сайті компанії «Промпривод», ви знайдете всі найпопулярніші та найактуальніші моделі механічних перетворювачів, що використовуються у виробничих процесах. Звертайтесь до наших менеджерів, щоб купити редуктор недорого з можливістю доставки замовлення до будь-якого населеного пункту країни.
Умовне позначення варіанта складання 22

Конструкція редуктора Ц2У

Основні технічні характеристики
| Найменування технічних характеристик | Типорозмір редуктора | |||||
| Ц2У-100 | Ц2У-125 | Ц2У-160 | Ц2У-200 | Ц2У-250 | ||
| Передавальні числа | 8; 10; 12,5; 16; 20; 25; 31,5; 40 | |||||
| Допустиме радіальне консольне | на швидкохідному валу | 500 | 750 | 1000 | 2240 | 3150 |
| на тихохідному валу | 4500 | 6300 | 9000 | 12500 | 18000 | |
| Номінальний момент, що крутить, на тихохідному валу, Н.м. | 315 | 630 | 1250 | 2500 | 5000 | |
| ККД | 0,97 | |||||
| Маса, кг | 20 | 32 | 95 | 170 | 320 | |
Умовне позначення редуктора
Ц2У-250-31,5-22-У3:
Ц2У – тип редуктора;
250 - міжосьова відстань тихохідного ступеня, мм;
31,5 - передавальне число;
22 - схема складання;
У3 - кліматичне виконання та категорія розміщення за ГОСТ 15150-69.
Цилиндрические редукторы Ц2У сборки 22
Відгуків про цей товар ще не було.
Немає відгуків про цей товар, станьте першим, залиште свій відгук.
Немає питань про даний товар, станьте першим і задайте своє питання.