Циліндричні редуктори Ц2У складання 31
Редуктори типу Ц2У складання 31
Універсальними та багатоцільовими перетворювачами моменту та швидкості обертання у приводах загального призначення виступають редуктори серії Ц2У.
Вони виконуються вузькими, про що свідчить їхня абревіатура, з двома ступенями та з циліндричним способом зачеплення зубчастих передач.
Для підключення відразу кількох електричних двигунів рекомендується замовляти редуктори у варіанті складання 31 та інших, які мають на увазі наявність двох кінців вхідного валу.
Більший перелік продукції загального промислового призначення, а також спеціалізованої техніки та комплектуючого обладнання до них можна знайти на сайті виробника «Промпривод». У нас завжди хороші ціни та лояльна програма знижок для оптових клієнтів. Звертайтесь до наших менеджерів, щоб купити редуктори недорого та з можливістю їх доставки по всій Україні.
Умовне позначення варіанта складання 31

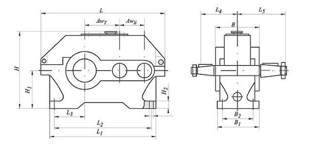
Конструкція редуктора Ц2У

Основні технічні характеристики
| Найменування технічних характеристик | Типорозмір редуктора | |||||
| Ц2У-100 | Ц2У-125 | Ц2У-160 | Ц2У-200 | Ц2У-250 | ||
| Передавальні числа | 8; 10; 12,5; 16; 20; 25; 31,5; 40 | |||||
| Допустиме радіальне консольне | на швидкохідному валу | 500 | 750 | 1000 | 2240 | 3150 |
| на тихохідному валу | 4500 | 6300 | 9000 | 12500 | 18000 | |
| Номінальний момент, що крутить, на тихохідному валу, Н.м. | 315 | 630 | 1250 | 2500 | 5000 | |
| ККД | 0,97 | |||||
| Маса, кг | 20 | 32 | 95 | 170 | 320 | |
Умовне позначення редуктора
Ц2У – тип редуктора;
250 - міжосьова відстань тихохідного ступеня, мм;
31,5 - передавальне число;
31 - схема складання;
У3 - кліматичне виконання та категорія розміщення за ГОСТ 15150-69.
Цилиндрические редукторы Ц2У сборки 31
Відгуків про цей товар ще не було.
Немає відгуків про цей товар, станьте першим, залиште свій відгук.
Немає питань про даний товар, станьте першим і задайте своє питання.